首页
伤感说说
动漫配图
心情说说
抖音文案
伤感图片
伤感说说:
伤感的句子说说心情
空间说说
心情说说
爱情说说
女生伤感说说
人生感悟
心情不好的说说
说说带图片
关于生活的说说
说说心情短语
qq空间说说带图片
个性说说
励志名言
一句话经典语录
感悟人生的经典句子
短句吧
情感故事
抖音文案
伤感图片:
伤感图片带字
非主流伤感图片
唯美伤感图片
女生伤感图片
唯美意境图片
悲伤的图片
唯美意境伤感图片
只有字的伤感图片
说说图片
伤心的图片
美甲图片
图片大全
情感图片
微信头像男
动态壁纸
动漫配图
伤感图片
首页
>
墙的剖面图怎么画
墙的剖面图怎么画,墙身剖面图怎么画
墙身剖面图大样图
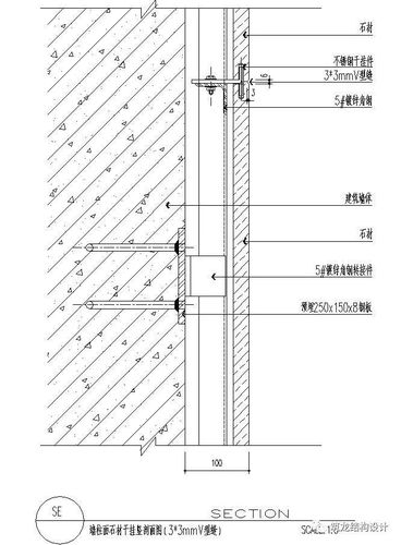
超全45张墙面剖面图节点大样图,结构狮必备!
某墙面软包剖面图cad详细节点施工图
超全45张墙面剖面图节点大样图,结构狮必备!
超全45张墙面剖面图节点大样图,结构狮必备!
更多推荐
墙身剖面图怎么画
剖面图怎么画
墙的剖面图
断面图和剖面图的区别
墙体简易剖面图详图
剖面图立面图
楼梯剖面图画法
景墙剖面图手绘
剖面图方向怎么看
墙身剖面图
景墙剖面图
墙身剖面图详解
墙身剖面图cad
剖面图效果图
景墙剖面图标注
景墙平立剖面图
景墙剖面图高清
墙身剖面节点详图
剖面图手绘
景观剖面图手绘
剖面图
景墙立面图
景观剖面图
楼梯剖面图
吊顶剖面图
景墙平立剖面图高清版
别墅剖面图
餐厅剖面图
园林剖面图
建筑剖面图