首页
伤感说说
动漫配图
心情说说
抖音文案
伤感图片
伤感说说:
伤感的句子说说心情
空间说说
心情说说
爱情说说
女生伤感说说
人生感悟
心情不好的说说
说说带图片
关于生活的说说
说说心情短语
qq空间说说带图片
个性说说
励志名言
一句话经典语录
感悟人生的经典句子
短句吧
情感故事
抖音文案
伤感图片:
伤感图片带字
非主流伤感图片
唯美伤感图片
女生伤感图片
唯美意境图片
悲伤的图片
唯美意境伤感图片
只有字的伤感图片
说说图片
伤心的图片
美甲图片
图片大全
情感图片
微信头像男
动态壁纸
动漫配图
伤感图片
首页
>
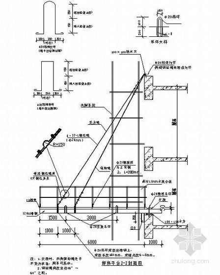
卸料平台预埋环图片
卸料平台预埋环图片,卸料平台预埋u型螺栓
11#楼卸料平台预埋完成
卸料平台方案
10技术交底(悬挑脚手架及卸料平台)-1
202卸料平台缺少预埋压环,缺少临边防护,通道未满铺
卸料平台预埋卡箍内添加附加钢筋起什么作用?求讲解
更多推荐
卸料平台预埋u型螺栓
钢丝绳预埋吊环
卸料平台吊环
卸料平台预埋件吊环
卸料平台吊环大样图
卸料平台预埋吊环图片
卸料平台u型预埋环图
卸料平台预埋件图片
卸料平台预埋环
卸料平台的预埋尺寸图
卸料平台预埋
消防预埋现场预埋图片
卸料平台安装图片
卸料平台图片
卸料平台预埋件
挑架预埋环尺寸图片
悬挑工字钢预埋环图片
工字钢预埋u型环图片
悬挑式卸料平台图集
预埋板图片大全
u型预埋环的示意图
卸料平台搭设规范图解
人防线管预埋方法图片
悬挑架预埋环
卸料平台尺寸说明图
sc线管预埋图片
预埋环
预埋线盒快速固定图片
挑架预埋环锚固长度
人防预埋86线盒图片