首页
伤感说说
动漫配图
心情说说
抖音文案
伤感图片
伤感说说:
伤感的句子说说心情
空间说说
心情说说
爱情说说
女生伤感说说
人生感悟
心情不好的说说
说说带图片
关于生活的说说
说说心情短语
qq空间说说带图片
个性说说
励志名言
一句话经典语录
感悟人生的经典句子
短句吧
情感故事
抖音文案
伤感图片:
伤感图片带字
非主流伤感图片
唯美伤感图片
女生伤感图片
唯美意境图片
悲伤的图片
唯美意境伤感图片
只有字的伤感图片
说说图片
伤心的图片
美甲图片
图片大全
情感图片
微信头像男
动态壁纸
动漫配图
伤感图片
首页
>
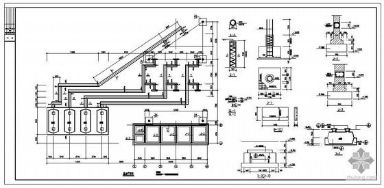
加油站结构图建筑
加油站结构图建筑,加油站结构图
某加油站结构图
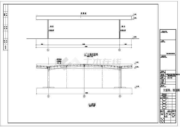
浅析钢结构建筑施工工艺
加油站建筑施工图纸 工程建筑面积约为:2000平方米,结构形式为
大型加油站设计总平面图免费下载 - 建筑规划图
文件 229kb格式 dwg等级:某加油站结构图立即下载建筑功能:交通建筑
更多推荐
加油站结构图
加油站潜油泵结构图
加油站地下油罐结构图
加油站罩棚结构
潜油泵加油机结构图
建筑结构图
建筑结构图识图教程
加油站图片设计图
建筑结构施工图
建筑结构图高清
建筑结构平面图
建筑图和结构图的区别
加油站图片效果图
中国古建筑结构图
建筑结构图怎么画
房屋建筑结构图
加油站平面布置图
建筑梁柱结构图
建筑公司部门结构图
加油站设计图
建筑结构图符号
加油站效果图
加油站网架图片
加油站图片
建筑结构
加油站中国石油
加油站真实图片
加油站潜油泵控制线图
加油站高清图片
中石油加油站