首页
伤感说说
动漫配图
心情说说
抖音文案
伤感图片
伤感说说:
伤感的句子说说心情
空间说说
心情说说
爱情说说
女生伤感说说
人生感悟
心情不好的说说
说说带图片
关于生活的说说
说说心情短语
qq空间说说带图片
个性说说
励志名言
一句话经典语录
感悟人生的经典句子
短句吧
情感故事
抖音文案
伤感图片:
伤感图片带字
非主流伤感图片
唯美伤感图片
女生伤感图片
唯美意境图片
悲伤的图片
唯美意境伤感图片
只有字的伤感图片
说说图片
伤心的图片
美甲图片
图片大全
情感图片
微信头像男
动态壁纸
动漫配图
伤感图片
首页
>
35kv变电站图纸讲解
35kv变电站图纸讲解,220kv变电站图纸详解
35kv变电所通用图纸
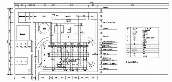
山东某35kv变电所电气总平面布置图
35kv变电站一次接线图
发了个内桥的35kv变电站,352815657@qq.com
10kv/35kv变电站主接线图讲解
更多推荐
220kv变电站图纸详解
35kv变电站设计图纸
35kv变电站设备图解
110kv变电站一次图讲解
35kv变电站布置图
35kv变电站主接线图
35kv变电站一次系统图
35kv变电站二次接线图
变电站图纸
35kv变电站一次接线图
变电站主接线图讲解
变电站结构讲解及图片
变电站设备讲解及图片
35kv变电站设计
35kv变电站平面布置图
35kv变电站
变电站土建图纸
变电站工作原理图解
变电站设备图解
110kv变电站主接线图
220kv变电站主接线图
变电站图纸符号大全
110kv变电站图片
变电站电气主接线图
220kv变电站平面布置图
变电站示意图
变电站变压器
10kv变电站
变电站符号大全图解
220kv变电站