首页
伤感说说
动漫配图
心情说说
抖音文案
伤感图片
伤感说说:
伤感的句子说说心情
空间说说
心情说说
爱情说说
女生伤感说说
人生感悟
心情不好的说说
说说带图片
关于生活的说说
说说心情短语
qq空间说说带图片
个性说说
励志名言
一句话经典语录
感悟人生的经典句子
短句吧
情感故事
抖音文案
伤感图片:
伤感图片带字
非主流伤感图片
唯美伤感图片
女生伤感图片
唯美意境图片
悲伤的图片
唯美意境伤感图片
只有字的伤感图片
说说图片
伤心的图片
美甲图片
图片大全
情感图片
微信头像男
动态壁纸
动漫配图
伤感图片
首页
>
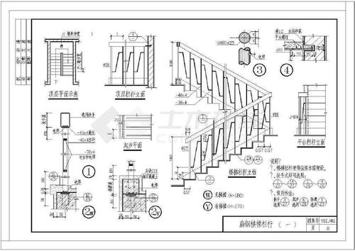
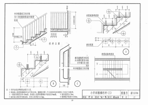
楼梯图集一17
楼梯图集一17,图集15j403-1栏杆
展开全部 新12j06 楼梯,17页 向左转 向右转
某地楼梯大样装修施工图(共11张)
某地楼梯大样装修施工图(共11张)
建筑标准图集——楼梯.docx
15j403-1,《楼梯 栏杆 栏板(一)》
更多推荐
图集15j403-1栏杆
15j403_1图集全套
15j403-1图集电子版
15j401图集
15j401钢梯图集
不锈钢栏杆图集大全
15j403-1栏杆免费图集
15j403-1楼梯图集
15j403—1楼梯栏杆图集
15j403 1图集
15j403一1图集
15j4031图集观看
15j403-1图集b14
楼梯栏杆图集
楼梯栏杆图片大全图集
图集17J610一1
楼梯栏杆15j403一1图集
15j403_1楼梯栏杆图集
楼梯扶手图集15j403-1
楼梯平面图
17j610-1图集
楼梯图片
楼梯设计效果图
楼梯剖面图
阁楼楼梯
11g101-1图集
图集17j008
旋转楼梯效果图
旋转楼梯图片
17j925-1图集