首页
伤感说说
动漫配图
心情说说
抖音文案
伤感图片
伤感说说:
伤感的句子说说心情
空间说说
心情说说
爱情说说
女生伤感说说
人生感悟
心情不好的说说
说说带图片
关于生活的说说
说说心情短语
qq空间说说带图片
个性说说
励志名言
一句话经典语录
感悟人生的经典句子
短句吧
情感故事
抖音文案
伤感图片:
伤感图片带字
非主流伤感图片
唯美伤感图片
女生伤感图片
唯美意境图片
悲伤的图片
唯美意境伤感图片
只有字的伤感图片
说说图片
伤心的图片
美甲图片
图片大全
情感图片
微信头像男
动态壁纸
动漫配图
伤感图片
首页
>
仓库怎么画简单
仓库怎么画简单,仓库怎么画
储物仓库简笔画
简笔画仓库图标
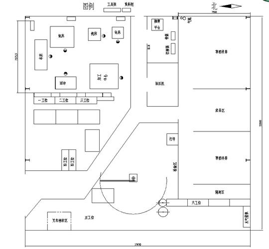
急需cad仓库图纸一份,我是学机械的 不知道该仓库图纸怎么画 大神们能
简笔画仓库图标
物资仓库简笔画
更多推荐
仓库怎么画
仓库怎么画手绘
简单的画简笔画
农场仓库怎么画
仓库立体图怎么画
仓库简笔画
仓库区域图怎么画
仓库平面图怎么画
简易仓库平面图怎么画
平面图怎么画简单
简单的画铅笔画
简单的画卡通画
四行仓库怎么画
简单的画画儿童
简单仓库图片
简单的画
简单又好看的画简笔
u型仓库布局图怎么画
药品仓库平面图怎么画
裤子怎么简笔画
简单的画小动物
仓库货架平面图怎么画
简单的画漂亮
物流仓库平面图怎么画
简单画一个人
简单又好看的画
简单的画动漫
八佰四行仓库简笔画
八百的四行仓库怎么画
思维导图怎么画