首页
伤感说说
动漫配图
心情说说
抖音文案
伤感图片
伤感说说:
伤感的句子说说心情
空间说说
心情说说
爱情说说
女生伤感说说
人生感悟
心情不好的说说
说说带图片
关于生活的说说
说说心情短语
qq空间说说带图片
个性说说
励志名言
一句话经典语录
感悟人生的经典句子
短句吧
情感故事
抖音文案
伤感图片:
伤感图片带字
非主流伤感图片
唯美伤感图片
女生伤感图片
唯美意境图片
悲伤的图片
唯美意境伤感图片
只有字的伤感图片
说说图片
伤心的图片
美甲图片
图片大全
情感图片
微信头像男
动态壁纸
动漫配图
伤感图片
首页
>
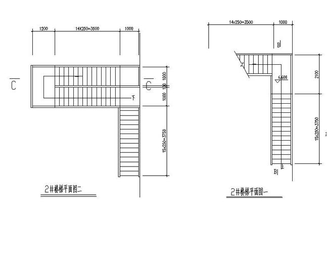
钢结构楼梯平面图
钢结构楼梯平面图,钢结构楼梯
[分享]室外钢结构楼梯平面图资料下载
某钢结构楼梯做法节点构造详图
简单式钢结构楼梯平面立面剖面图
小区住宅新增复式钢楼梯结构施工图
[分享]两跑钢结构楼梯资料免费下载
更多推荐
钢结构楼梯
钢结构厂房结构图
楼梯平面图
钢结构图纸基本识图
楼梯剖面图
钢结构效果图
钢结构厂房设计图
钢结构厂房效果图
钢结构图片
钢结构现场图片
钢结构自建房
建筑平面图
钢结构隔层
室内平面图
钢结构雨棚
平面图
钢结构别墅
楼梯设计效果图
室内设计平面图
房屋平面图
钢结构房屋
钢结构平台
景观平面图
旋转楼梯效果图
故宫平面图高清大图
钢结构
钢结构厂房外观
梁式楼梯
简单平面图
楼梯图片