首页
伤感说说
动漫配图
心情说说
抖音文案
伤感图片
伤感说说:
伤感的句子说说心情
空间说说
心情说说
爱情说说
女生伤感说说
人生感悟
心情不好的说说
说说带图片
关于生活的说说
说说心情短语
qq空间说说带图片
个性说说
励志名言
一句话经典语录
感悟人生的经典句子
短句吧
情感故事
抖音文案
伤感图片:
伤感图片带字
非主流伤感图片
唯美伤感图片
女生伤感图片
唯美意境图片
悲伤的图片
唯美意境伤感图片
只有字的伤感图片
说说图片
伤心的图片
美甲图片
图片大全
情感图片
微信头像男
动态壁纸
动漫配图
伤感图片
首页
>
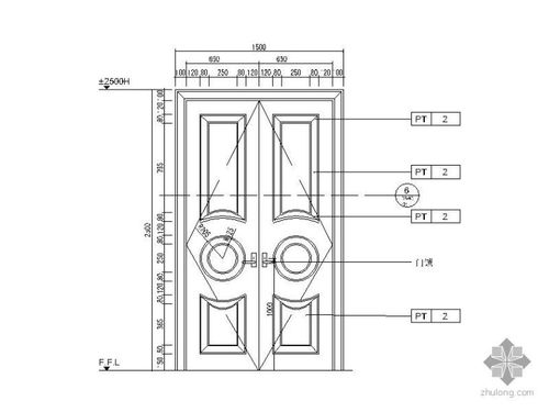
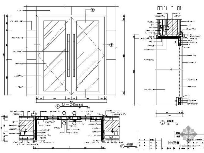
双开门大门大样图
双开门大门大样图,门窗大样图
平开门及门套平剖大样图
[分享]双开门cad节点资料下载
医院双扇门详图
大样酒店门详图酒店门施客房门淋浴间门入户卧室卫生间门详图双开门
精致室内双开装饰木门cad大样详图
更多推荐
门窗大样图
大门图片大全图册
楼梯大样图
墙体大样图
大样图
吊顶大样图
墙身大样图
大样图清晰
天花大样图
别墅大门庭院大门
节点大样图
xzd大样图
农村大门图片大全图册
吊顶节点大样图
墙身大样图详解
大门图片
大样图怎么画
大门样式
cad大样图
节点大样图怎么看
不锈钢大门图片
墙身大样
大样
折板楼梯配筋大样图
节点大样
大门
大门现代
不锈钢大门
大门设计
砖砌三级隔油池大样图