首页
伤感说说
动漫配图
心情说说
抖音文案
伤感图片
伤感说说:
伤感的句子说说心情
空间说说
心情说说
爱情说说
女生伤感说说
人生感悟
心情不好的说说
说说带图片
关于生活的说说
说说心情短语
qq空间说说带图片
个性说说
励志名言
一句话经典语录
感悟人生的经典句子
短句吧
情感故事
抖音文案
伤感图片:
伤感图片带字
非主流伤感图片
唯美伤感图片
女生伤感图片
唯美意境图片
悲伤的图片
唯美意境伤感图片
只有字的伤感图片
说说图片
伤心的图片
美甲图片
图片大全
情感图片
微信头像男
动态壁纸
动漫配图
伤感图片
首页
>
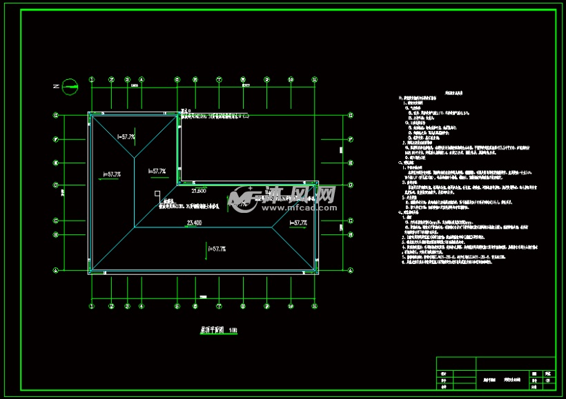
屋顶平面图绘制
屋顶平面图绘制,平屋顶怎么画
屋顶平面图
屋顶结构平面图.pdf 1页
屋顶平面图
屋顶平面图
屋顶平面图 建筑设计总说明
更多推荐
平屋顶怎么画
屋顶平面图画法
屋顶平面图怎么画
屋顶花园平面图手绘
各种房顶图片
教学楼屋顶平面图
工程制图屋顶画法
平屋顶平面图示意图
屋顶怎么画
教学楼屋顶平面图绘制
屋顶平面图需要画什么
屋顶排水平面图怎么画
平屋顶平面图设计图
屋顶平面图排水画法
屋顶平面图
绘制平面图
怎么绘制平面图
房屋平面图
平面图设计手绘
景观平面图手绘
平面图手绘
平面图制作
楼梯平面图
平面图
景观平面图
室内设计平面图
室内平面图
简单平面图
平面图怎么画
平面图怎么画手绘