首页
伤感说说
动漫配图
心情说说
抖音文案
伤感图片
伤感说说:
伤感的句子说说心情
空间说说
心情说说
爱情说说
女生伤感说说
人生感悟
心情不好的说说
说说带图片
关于生活的说说
说说心情短语
qq空间说说带图片
个性说说
励志名言
一句话经典语录
感悟人生的经典句子
短句吧
情感故事
抖音文案
伤感图片:
伤感图片带字
非主流伤感图片
唯美伤感图片
女生伤感图片
唯美意境图片
悲伤的图片
唯美意境伤感图片
只有字的伤感图片
说说图片
伤心的图片
美甲图片
图片大全
情感图片
微信头像男
动态壁纸
动漫配图
伤感图片
首页
>
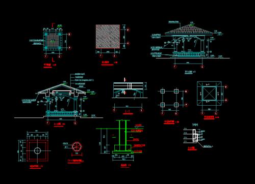
六角亭尺寸高清设计图
六角亭尺寸高清设计图,六角凉亭图纸
六角亭
分享| 六角亭cad建筑方案设计图纸
分享| 六角亭cad建筑方案设计图纸
分享| 六角亭cad建筑方案设计图纸
一套防腐木材质的实木双层六角亭施工cad图纸 重檐仿古景观亭子
更多推荐
六角凉亭图纸
六角亭平面图
六角亭施工图纸
六角亭效果图
六角亭子图纸
六角亭子尺寸
六角亭子平面图
古建六角亭详细结构图
亭子部位结构名称图
六角亭顶部结构图
六角亭的尺寸
双层六角亭
六角亭手绘
六角亭尺寸及图片
双层六角亭子结构图
古建六角亭详细解剖图
六角凉亭效果图
六角亭结构解析
六角亭放线定位图
六角亭施工图
六角亭结构图
六角凉亭施工图尺寸
六角亭子的做法与图片
3米六角亭尺寸设计图
混凝土六角亭施工图
六角亭结构
六角亭施工图高清图
重檐六角亭
4米六角亭尺寸设计图
六角亭图片设计图