首页
伤感说说
动漫配图
心情说说
抖音文案
伤感图片
伤感说说:
伤感的句子说说心情
空间说说
心情说说
爱情说说
女生伤感说说
人生感悟
心情不好的说说
说说带图片
关于生活的说说
说说心情短语
qq空间说说带图片
个性说说
励志名言
一句话经典语录
感悟人生的经典句子
短句吧
情感故事
抖音文案
伤感图片:
伤感图片带字
非主流伤感图片
唯美伤感图片
女生伤感图片
唯美意境图片
悲伤的图片
唯美意境伤感图片
只有字的伤感图片
说说图片
伤心的图片
美甲图片
图片大全
情感图片
微信头像男
动态壁纸
动漫配图
伤感图片
首页
>
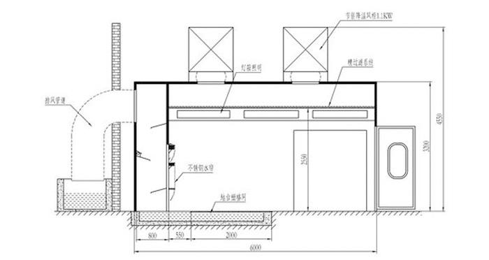
自建喷漆房的设计图
自建喷漆房的设计图,喷漆房通风排风设计
无尘喷漆房排风的运行方式
恩施鹏浩涂装生产各种规格汽车喷烤漆房
无尘喷漆房
汽车喷漆房设计图
滁州移动伸缩式喷漆房
更多推荐
喷漆房通风排风设计
简易喷漆房设计示意图
烤漆房进出风口示意图
喷漆房排风口设计
喷漆房送风排风设计图
喷漆房设计及图片
工业厂房喷漆房的设计
喷漆房设计
喷漆房设计方案
自建一层平房设计图
喷漆房效果图
自制喷漆房排风效果图
房屋设计图效果图
农村自建房设计图
平房设计图及效果图
喷漆房结构图
自建烤漆房
房间设计图卧室图片
喷漆房设备
自制小型喷漆房
房屋设计图
四合院设计图及效果图
实验室喷漆房设备
喷漆房环保处理设备
一层平房设计图
房屋设计图农村
房屋设计图户型
喷漆房结构
服装设计图效果图
喷漆房