首页
伤感说说
动漫配图
心情说说
抖音文案
伤感图片
伤感说说:
伤感的句子说说心情
空间说说
心情说说
爱情说说
女生伤感说说
人生感悟
心情不好的说说
说说带图片
关于生活的说说
说说心情短语
qq空间说说带图片
个性说说
励志名言
一句话经典语录
感悟人生的经典句子
短句吧
情感故事
抖音文案
伤感图片:
伤感图片带字
非主流伤感图片
唯美伤感图片
女生伤感图片
唯美意境图片
悲伤的图片
唯美意境伤感图片
只有字的伤感图片
说说图片
伤心的图片
美甲图片
图片大全
情感图片
微信头像男
动态壁纸
动漫配图
伤感图片
首页
>
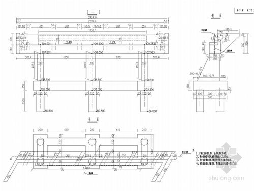
肋板式桥台结构示意图
肋板式桥台结构示意图,肋板式桥台实体图片
肋板式桥台的介绍
0号桥台一般构造图
大桥0#肋板台一般构造图
单箱单室连续箱梁桥全套施工图(肋板式桥台,桩柱式台帽)
第二章埋置式桥台的计算算例[高等教学]
更多推荐
肋板式桥台实体图片
肋式桥台
桥台台背回填示意图
桥梁肋板结构示意图
肋板台图解
肋板式桥台构造图
肋板式桥台
肋板桥台示意图
肋板式桥台三维图
桥台台帽
肋板式桥台施工方案
u型桥台实物图
耳墙式桥台
桥梁肋板图片
肋板图片
桥梁桩基
台帽和盖梁的区别图片
桥台肋板钢筋图片
肋板式桥台图片
桥台结构示意图
u型桥台结构示意图
桥墩和桥台的示意图
桥台示意图
桥台台背示意图
桥台台背前缘线示意图
桥台肋板图片
承台墩台桥台图片
桥台耳墙背墙示意图
桥台构造图解
子宫图结构示意图