首页
伤感说说
动漫配图
心情说说
抖音文案
伤感图片
伤感说说:
伤感的句子说说心情
空间说说
心情说说
爱情说说
女生伤感说说
人生感悟
心情不好的说说
说说带图片
关于生活的说说
说说心情短语
qq空间说说带图片
个性说说
励志名言
一句话经典语录
感悟人生的经典句子
短句吧
情感故事
抖音文案
伤感图片:
伤感图片带字
非主流伤感图片
唯美伤感图片
女生伤感图片
唯美意境图片
悲伤的图片
唯美意境伤感图片
只有字的伤感图片
说说图片
伤心的图片
美甲图片
图片大全
情感图片
微信头像男
动态壁纸
动漫配图
伤感图片
首页
>
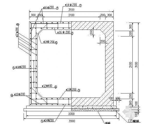
箱涵标准钢筋图集
箱涵标准钢筋图集,排水箱涵图集
jtggqs 010-85 公路桥涵设计图(单孔钢筋混凝土箱涵)
整齐的箱涵钢筋绑扎
[分享]预制箱涵设计图纸资料免费下载
单孔钢筋混凝土箱涵涵身配筋图怎么看?新手,谢谢了
[湖北]高速公路盖板涵及双孔箱涵图纸33张(知名大院)
更多推荐
排水箱涵图集
箱涵钢筋配筋图解
箱涵图片大全
17zz01箱涵图集
涵洞钢筋图纸解析
涵洞基础钢筋布置图
箱涵翼墙图片
图纸梁钢筋标注详解
箱涵涵身钢筋构造图解
箱涵标准图集
箱涵模板施工单价
双孔箱涵
公路箱涵标准图集
箱涵钢筋图纸
涵洞钢筋图
箱涵构造图集
箱梁钢筋图纸讲解
盖板涵配筋图钢筋详解
怎么看箱涵配筋图
箱式涵洞钢筋图纸
箱涵沉降缝
涵洞钢筋配筋图解
箱涵施工图
箱涵配筋图
箱涵钢筋
箱涵底板内倒角模板图
箱涵底板钢筋绑扎图片
箱涵施工图片大全
箱涵钢筋布置图
涵洞工程图纸入门