首页
伤感说说
动漫配图
心情说说
抖音文案
伤感图片
伤感说说:
伤感的句子说说心情
空间说说
心情说说
爱情说说
女生伤感说说
人生感悟
心情不好的说说
说说带图片
关于生活的说说
说说心情短语
qq空间说说带图片
个性说说
励志名言
一句话经典语录
感悟人生的经典句子
短句吧
情感故事
抖音文案
伤感图片:
伤感图片带字
非主流伤感图片
唯美伤感图片
女生伤感图片
唯美意境图片
悲伤的图片
唯美意境伤感图片
只有字的伤感图片
说说图片
伤心的图片
美甲图片
图片大全
情感图片
微信头像男
动态壁纸
动漫配图
伤感图片
首页
>
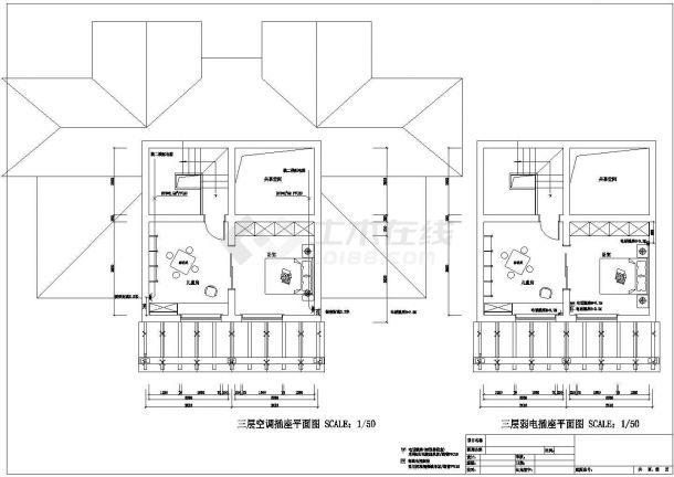
别墅电路布线图
别墅电路布线图,三层别墅配电箱配置
别墅水电及系统图
别墅水电改造的15个装修坑,老师傅实力解说
别墅水电及系统图
为别墅智能家居cad深化设计图一览以及部分截图: 一层智能家居布线图
别墅村电路图
更多推荐
三层别墅配电箱配置
三层别墅配电系统图
三层别墅水电布线图
别墅电路布线图方案
水电线路图
别墅水电施工图
别墅水电布线图
别墅电路图布置
家装电路布线图图解
电路布线图
家装电路布线图
厨房电路布线图
装修线路图电路
家装电路布线图平面图
楼房电路布线图纸
别墅水电布线图三层
卫生间电路布线图
自建别墅水电布线图
别墅装修电路布线标准
别墅水电布线图农村
别墅水电走线图
房子装修电路布线图
三室两厅电路布线图
电路布线
家装电路布线图实景
三层别墅水电布线
家装电路布线图设计
家装电路布线图客厅
预埋暗线布线图
装修水电布线图