首页
伤感说说
动漫配图
心情说说
抖音文案
伤感图片
伤感说说:
伤感的句子说说心情
空间说说
心情说说
爱情说说
女生伤感说说
人生感悟
心情不好的说说
说说带图片
关于生活的说说
说说心情短语
qq空间说说带图片
个性说说
励志名言
一句话经典语录
感悟人生的经典句子
短句吧
情感故事
抖音文案
伤感图片:
伤感图片带字
非主流伤感图片
唯美伤感图片
女生伤感图片
唯美意境图片
悲伤的图片
唯美意境伤感图片
只有字的伤感图片
说说图片
伤心的图片
美甲图片
图片大全
情感图片
微信头像男
动态壁纸
动漫配图
伤感图片
首页
>
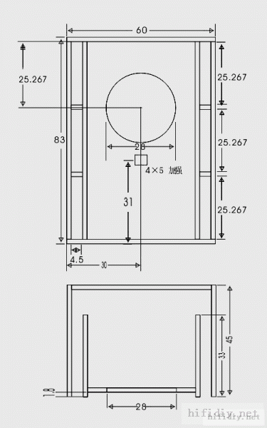
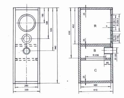
12寸全频音箱制作图纸
12寸全频音箱制作图纸,6.5寸音箱制作图纸
论坛 69 论坛技术讨论专区 69 音箱diy论坛 69 关于12寸飞乐全
单12寸全频音箱cf-12
论坛技术讨论专区 69 音箱diy论坛 69 请教天朗皇家肯得堡12寸
12寸全频音箱图纸图片分享
全频音箱制作
更多推荐
6.5寸音箱制作图纸
音箱制作图纸
惠威8寸音箱制作图纸
6.5寸迷宫音箱制作图纸
音箱制作过程全程图解
音箱图纸大全箱体
超重低音音箱制作图
自制音箱箱体设计图
自制迷宫音箱图纸
音箱图纸大全
自制低音炮音箱构造图
低音炮音箱图纸
自制音箱构造图
惠威音箱图纸
8寸低音炮设计图纸
迷宫音箱箱体设计图
超重低音音箱结构图
倒相式音箱设计图
自建房图纸大全图册
小音箱
惠威落地音箱大全
音箱线
书签制作简单漂亮图片
功放与音箱连接线
ai音箱
电脑音箱
手工小制作
小爱音箱
智能音箱
看图纸入门