首页
伤感说说
动漫配图
心情说说
抖音文案
伤感图片
伤感说说:
伤感的句子说说心情
空间说说
心情说说
爱情说说
女生伤感说说
人生感悟
心情不好的说说
说说带图片
关于生活的说说
说说心情短语
qq空间说说带图片
个性说说
励志名言
一句话经典语录
感悟人生的经典句子
短句吧
情感故事
抖音文案
伤感图片:
伤感图片带字
非主流伤感图片
唯美伤感图片
女生伤感图片
唯美意境图片
悲伤的图片
唯美意境伤感图片
只有字的伤感图片
说说图片
伤心的图片
美甲图片
图片大全
情感图片
微信头像男
动态壁纸
动漫配图
伤感图片
首页
>
推拉窗cad图立面图
推拉窗cad图立面图,cad平面图生成立面图
铝合金推拉门窗的设计与下料尺寸如何计算?
铝合金推拉门窗的设计与下料尺寸如何计算?
内平开窗,平开下悬窗,上悬窗,外平开窗,下悬窗,推拉窗,中悬窗,内平
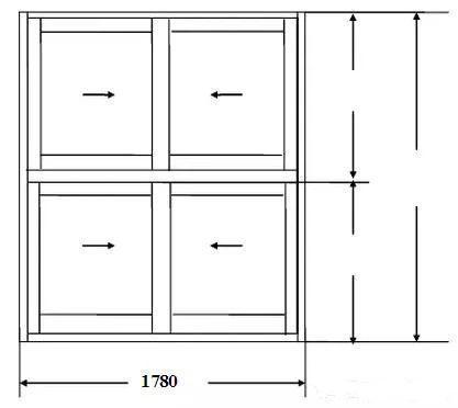
4,设窗宽为w(1780),窗高为h(2980);上边推拉窗高为h1, 下边推拉窗高为
铝合金推拉门窗的设计与下料尺寸如何计算?
更多推荐
cad平面图生成立面图
cad立面图图片
cad平面立面图
cad简单平面立面图
cad客厅立面图
cad家装立面图
卧室立面图cad
cad立面图衣柜
厨房立面图cad
cad房间立面图
cad立面图
cad立面图简单
cad餐厅立面图
cad立面图高清
客厅立面图cad高清
cad建筑立面图
室内设计cad立面图
cad立面图怎么画
cad立面图标注
cad立面图沙发背景墙
cad立面图电视背景墙
推拉窗图片效果图
卧室立面图
推拉窗示意图
推拉窗效果图
四扇推拉窗效果图
四开推拉窗安装效果图
铝合金推拉窗分解图
cad吊顶图
断桥铝推拉窗效果图