首页
伤感说说
动漫配图
心情说说
抖音文案
伤感图片
伤感说说:
伤感的句子说说心情
空间说说
心情说说
爱情说说
女生伤感说说
人生感悟
心情不好的说说
说说带图片
关于生活的说说
说说心情短语
qq空间说说带图片
个性说说
励志名言
一句话经典语录
感悟人生的经典句子
短句吧
情感故事
抖音文案
伤感图片:
伤感图片带字
非主流伤感图片
唯美伤感图片
女生伤感图片
唯美意境图片
悲伤的图片
唯美意境伤感图片
只有字的伤感图片
说说图片
伤心的图片
美甲图片
图片大全
情感图片
微信头像男
动态壁纸
动漫配图
伤感图片
首页
>
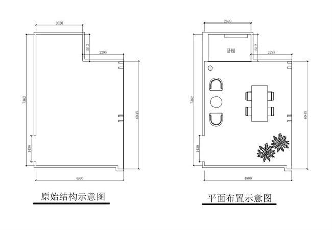
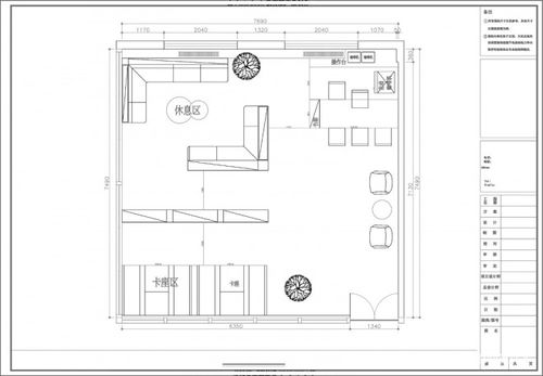
休息室平面图
休息室平面图,员工休息室平面图
公共休息室平面图
华勤休息室
高铁站员工休息室
活动室平面图:学生休息室是为每天的社交活动和游戏设计的.
办公休息区 茶水休息区 广州茶水柜方案 休息区方案 休息室
更多推荐
员工休息室平面图
休息室简笔画
储藏室平面图
接待室平面图
更衣室平面图
vip休息室平面图
简易休息室
茶水间平面图
公司休息室图片
接待区平面图
休息室布局平面图
影视厅平面图
休息室效果图
休息室图片
室内平面图
休息室图标
办公室休息室
休息室装修效果图
平面图
室内设计平面图
休息室
景观平面图
工地休息室
楼梯平面图
餐厅平面图
休息室真实
房屋平面图
简单平面图
建筑平面图
小区平面图