首页
伤感说说
动漫配图
心情说说
抖音文案
伤感图片
伤感说说:
伤感的句子说说心情
空间说说
心情说说
爱情说说
女生伤感说说
人生感悟
心情不好的说说
说说带图片
关于生活的说说
说说心情短语
qq空间说说带图片
个性说说
励志名言
一句话经典语录
感悟人生的经典句子
短句吧
情感故事
抖音文案
伤感图片:
伤感图片带字
非主流伤感图片
唯美伤感图片
女生伤感图片
唯美意境图片
悲伤的图片
唯美意境伤感图片
只有字的伤感图片
说说图片
伤心的图片
美甲图片
图片大全
情感图片
微信头像男
动态壁纸
动漫配图
伤感图片
首页
>
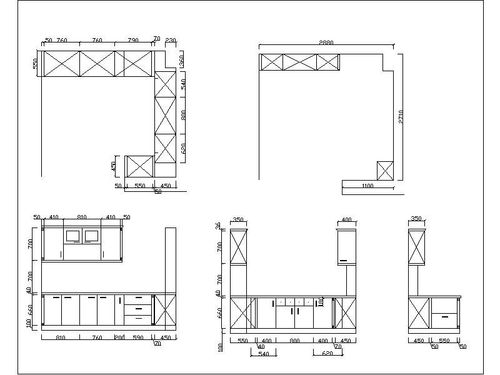
橱柜设计入门教程
橱柜设计入门教程,用cad画橱柜的基本步骤
我的橱柜免拉手90橱柜攻略(一)_橱柜_设计_教程_木工_装修_橱柜设计
【做厨柜】如何自己动手做厨房橱柜?
郑州橱柜设计 郑州德美橱柜 粮食厅家属院 设计稿
[分享]橱柜的cad资料下载
瓷砖水泥橱柜制作全过程
更多推荐
用cad画橱柜的基本步骤
整体厨柜
手机做橱柜效果图软件
做橱柜效果图的软件
橱柜画图纸口诀
最新橱柜设计效果图
橱柜设计图结构图
初学者橱柜图怎么画
橱柜设计自学大全
最新款橱柜效果图大全
柜子设计师初学者
厨房橱柜设计设计图
橱柜设计
入门玄关设计
厨房橱柜设计
内衣打版设计入门教程
别墅入门玄关设计
橱柜设计草图
橱柜设计图
橱柜设计平面图
橱柜设计图片
板式家具设计教程
橱柜设计结构图
橱柜转角处的设计
橱柜死角设计图片
小户型橱柜设计
入门玄关设计效果图
橱柜设计图带尺寸
橱柜设计手绘图
橱柜内部空间设计