首页
伤感说说
动漫配图
心情说说
抖音文案
伤感图片
伤感说说:
伤感的句子说说心情
空间说说
心情说说
爱情说说
女生伤感说说
人生感悟
心情不好的说说
说说带图片
关于生活的说说
说说心情短语
qq空间说说带图片
个性说说
励志名言
一句话经典语录
感悟人生的经典句子
短句吧
情感故事
抖音文案
伤感图片:
伤感图片带字
非主流伤感图片
唯美伤感图片
女生伤感图片
唯美意境图片
悲伤的图片
唯美意境伤感图片
只有字的伤感图片
说说图片
伤心的图片
美甲图片
图片大全
情感图片
微信头像男
动态壁纸
动漫配图
伤感图片
首页
>
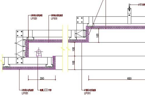
吊顶灯带尺寸
吊顶灯带尺寸,二级吊顶尺寸图解
cn213390785u_一种吊顶系统边部暗藏灯带节点结构有效
吊顶的发光灯带的灯槽的规格是 高度是多少 宽度是多少 最小的话是
是套龙骨,立面封板龙骨,石膏板吗?用不用套藻井灯带啊?
作何解释?
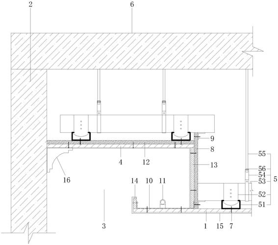
关于嵌灯龙骨的问题
更多推荐
二级吊顶尺寸图解
吊顶尺寸标准尺寸图
灯槽尺寸
吊顶灯带槽尺寸
吊顶灯槽尺寸图
灯带吊顶
灯带尺寸
灯带槽尺寸
暗藏灯带尺寸
灯带吊顶效果图
酒柜暗藏灯带灯槽尺寸
一级吊顶灯槽尺寸图
暗藏灯带灯槽尺寸图解
吊顶反光灯槽尺寸图解
灯槽和灯带
灯带安装在灯槽图
客厅灯带
楼梯灯带
吊顶
反光灯槽尺寸图纸
灯带效果图
门头灯带
灯带
客厅吊顶
铝扣板吊顶
轻钢龙骨吊顶
卧室吊顶
墙面反光灯槽尺寸图纸
阳台吊顶
吊顶效果图