首页
伤感说说
动漫配图
心情说说
抖音文案
伤感图片
伤感说说:
伤感的句子说说心情
空间说说
心情说说
爱情说说
女生伤感说说
人生感悟
心情不好的说说
说说带图片
关于生活的说说
说说心情短语
qq空间说说带图片
个性说说
励志名言
一句话经典语录
感悟人生的经典句子
短句吧
情感故事
抖音文案
伤感图片:
伤感图片带字
非主流伤感图片
唯美伤感图片
女生伤感图片
唯美意境图片
悲伤的图片
唯美意境伤感图片
只有字的伤感图片
说说图片
伤心的图片
美甲图片
图片大全
情感图片
微信头像男
动态壁纸
动漫配图
伤感图片
首页
>
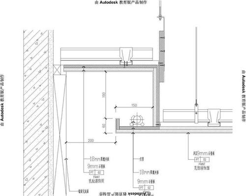
灯槽尺寸
灯槽尺寸,灯带灯槽尺寸
电视背景墙灯槽如何设计,尺寸多少
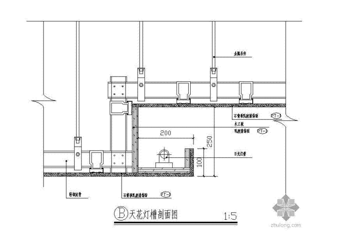
石膏板吊顶灯槽节点图
计算吊顶时,灯带与灯槽是单独计算,具体计算项目是什么.
灯槽的石膏板面层怎么计算啊?
石膏板吊顶灯槽安装节点图
更多推荐
灯带灯槽尺寸
吊顶灯槽尺寸
吊顶灯槽尺寸图
灯槽图片
灯槽吊顶效果图
吊顶灯槽施工详图
暗藏灯带尺寸
灯槽尺寸图
反光灯槽尺寸
灯槽灯带
正灯槽和反灯槽图
酒柜暗藏灯带灯槽尺寸
暗藏灯带灯槽尺寸图解
反光灯槽最小尺寸
灯槽
反光灯槽尺寸图纸
吊顶灯槽
一级吊顶灯槽尺寸图
吊顶反光灯槽尺寸图
反灯槽
灯槽灯带效果图
石膏板吊顶灯槽尺寸图
暗藏灯槽
反光灯槽
床的尺寸
灯槽做法
灯槽效果图
灯带安装在灯槽图
回光灯槽
床头柜尺寸