首页
伤感说说
动漫配图
心情说说
抖音文案
伤感图片
伤感说说:
伤感的句子说说心情
空间说说
心情说说
爱情说说
女生伤感说说
人生感悟
心情不好的说说
说说带图片
关于生活的说说
说说心情短语
qq空间说说带图片
个性说说
励志名言
一句话经典语录
感悟人生的经典句子
短句吧
情感故事
抖音文案
伤感图片:
伤感图片带字
非主流伤感图片
唯美伤感图片
女生伤感图片
唯美意境图片
悲伤的图片
唯美意境伤感图片
只有字的伤感图片
说说图片
伤心的图片
美甲图片
图片大全
情感图片
微信头像男
动态壁纸
动漫配图
伤感图片
首页
>
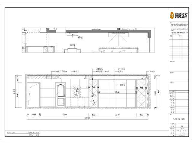
厨房吊顶立面图
厨房吊顶立面图,厨房立面图平面图
从立面看细节,立面图主要表示整个房子的风格体现和装饰造型部分.
家装厨房立面图欣赏
【嘉定南苑十村】欧堡装饰 更新:厨卫吊顶中!
吊顶平面图
装饰立面图——b向立面图
更多推荐
厨房立面图平面图
吊顶立面图剖面图
厨房立面图效果图
厨房立面图立体
吊顶立面图
客厅吊顶立面图
天花吊顶立面图
厨房立面图
二级吊顶立面图
吊顶立面图解析
吊顶灯带立面图
厨房吊顶效果图
厨房立面图高清
吊顶立面图手绘
天花板吊顶立面图
厨房立面图手绘
石膏板吊顶立面图
客厅吊顶剖面图
吊顶立面图怎么画
客厅吊顶平面图
cad吊顶立面图
厨房平面图
厨房立面图怎么画
吊顶剖面图
厨房立面图cad
轻钢龙骨吊顶立面图
吊灯立面图
厨房吊顶施工
厨房吊顶效果图简约
厨房吊顶效果图天花