首页
伤感说说
动漫配图
心情说说
抖音文案
伤感图片
伤感说说:
伤感的句子说说心情
空间说说
心情说说
爱情说说
女生伤感说说
人生感悟
心情不好的说说
说说带图片
关于生活的说说
说说心情短语
qq空间说说带图片
个性说说
励志名言
一句话经典语录
感悟人生的经典句子
短句吧
情感故事
抖音文案
伤感图片:
伤感图片带字
非主流伤感图片
唯美伤感图片
女生伤感图片
唯美意境图片
悲伤的图片
唯美意境伤感图片
只有字的伤感图片
说说图片
伤心的图片
美甲图片
图片大全
情感图片
微信头像男
动态壁纸
动漫配图
伤感图片
首页
>
天花板吊顶立面图
天花板吊顶立面图,天花吊顶立面图
[分享]平面图顶棚图资料下载
[分享]平面图顶棚图资料下载
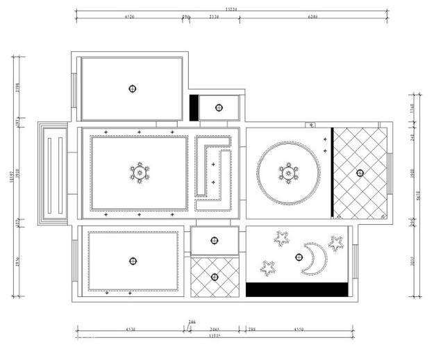
第五张:天花吊顶布置图
吊顶平面图,由于层高的过矮的问题,全屋吊顶都是石膏线结合板线为主
吊顶平面图
更多推荐
天花吊顶立面图
吊顶立面图剖面图
石膏板吊顶立面图
天花板吊顶设计图
天花板吊顶效果图
吊顶立面图
客厅吊顶立面图
厨房吊顶立面图
吊顶灯带立面图
吊顶立面图解析
cad天花板吊顶平面图
二级吊顶立面图
吊顶立面图手绘
天花板吊顶图片大全
吊顶立面图怎么画
天花板吊顶样式
cad吊顶立面图
简单天花板吊顶效果图
天花板吊顶
轻钢龙骨吊顶立面图
中式天花板吊顶效果图
天花板吊顶客厅
卧室天花板吊顶
天花板吊顶价格
pvc天花板吊顶图片
客厅吊顶剖面图
铝天花板吊顶
客厅吊顶平面图
客厅吊顶立面图怎么画
天花吊顶效果图大全