首页
伤感说说
动漫配图
心情说说
抖音文案
伤感图片
伤感说说:
伤感的句子说说心情
空间说说
心情说说
爱情说说
女生伤感说说
人生感悟
心情不好的说说
说说带图片
关于生活的说说
说说心情短语
qq空间说说带图片
个性说说
励志名言
一句话经典语录
感悟人生的经典句子
短句吧
情感故事
抖音文案
伤感图片:
伤感图片带字
非主流伤感图片
唯美伤感图片
女生伤感图片
唯美意境图片
悲伤的图片
唯美意境伤感图片
只有字的伤感图片
说说图片
伤心的图片
美甲图片
图片大全
情感图片
微信头像男
动态壁纸
动漫配图
伤感图片
首页
>
楼梯结构名称
楼梯结构名称,钢结构楼梯
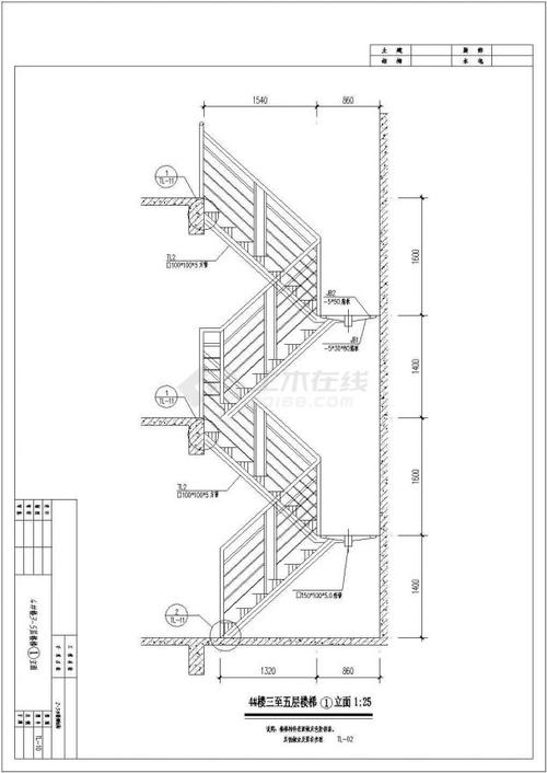
某多层住宅楼钢结构楼梯设计cad全套施工详图甲级院设计
实木楼梯的14个基本结构名称全解!
室外楼梯结构图
楼梯有什么构造组成? - 结构设计知识
某砖混办公楼楼梯节点构造详图-混凝土节点详图-筑龙结构设计论坛
更多推荐
钢结构楼梯
阁楼楼梯
楼梯
楼梯设计
室外楼梯
楼梯平面图
楼梯剖面图
结构
旋转楼梯
伸缩楼梯
楼梯踏步
梁式楼梯
楼梯设计效果图
实木楼梯
楼梯尺寸
楼梯间
旋转楼梯图片
别墅楼梯
楼梯图片
旋转楼梯尺寸
旋转楼梯效果图
楼梯扶手
高的结构
楼梯卡通
人体结构
人体结构图
结构胶
花的结构
楼梯简笔画
花的结构示意图