首页
伤感说说
动漫配图
心情说说
抖音文案
伤感图片
伤感说说:
伤感的句子说说心情
空间说说
心情说说
爱情说说
女生伤感说说
人生感悟
心情不好的说说
说说带图片
关于生活的说说
说说心情短语
qq空间说说带图片
个性说说
励志名言
一句话经典语录
感悟人生的经典句子
短句吧
情感故事
抖音文案
伤感图片:
伤感图片带字
非主流伤感图片
唯美伤感图片
女生伤感图片
唯美意境图片
悲伤的图片
唯美意境伤感图片
只有字的伤感图片
说说图片
伤心的图片
美甲图片
图片大全
情感图片
微信头像男
动态壁纸
动漫配图
伤感图片
首页
>
会议室布局平面图
会议室布局平面图,小型会议室平面图
当前位置>首页>企业动态>中型会议室视频会议解决方案> 布局参考下图
[分享]会议室平面图cad资料下载
指挥中心会议室音视频系统改造设计方案,也可以作为新建会议室解决
[分享]多功能会议室灯光音响及集成管理设计
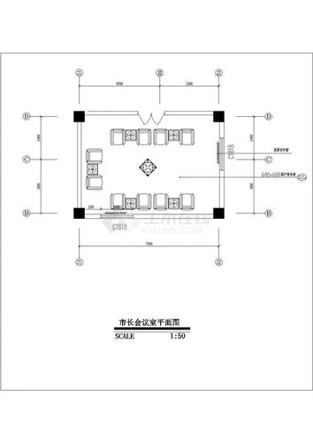
浙江省温州市市政府办公楼多个会议室平面布置cad图纸
更多推荐
小型会议室平面图
小型会议室装修风格
大型会议室平面图
会议室平面图
酒店会议室平面图
会议室平面效果图
会议室平面设计图
会议室平面图座位
办公室布局平面图
多功能会议室平面图
会议室立面图
会议室布置效果图
幼儿园布局图平面图
办公室平面图设计布局
餐厅布局平面图
仓库布局图规划平面图
超市平面图布局
会议室效果图现代
会议室效果图
会议室效果图简单
展厅布局设计平面图
故宫布局平面图
会议室效果图小型
会议室布置
办公室布局效果图
办公室平面图
办公室设计平面图
会议室开会真实图片
古代城市布局平面图
会议室图片